Chestnut Infill Development — Modern Multi-Level Duplex
The Chestnut Infill Project brings modern, high-quality duplex living to St. Catharines with spacious, light-filled layouts that blend seamlessly into the neighbourhood’s character.
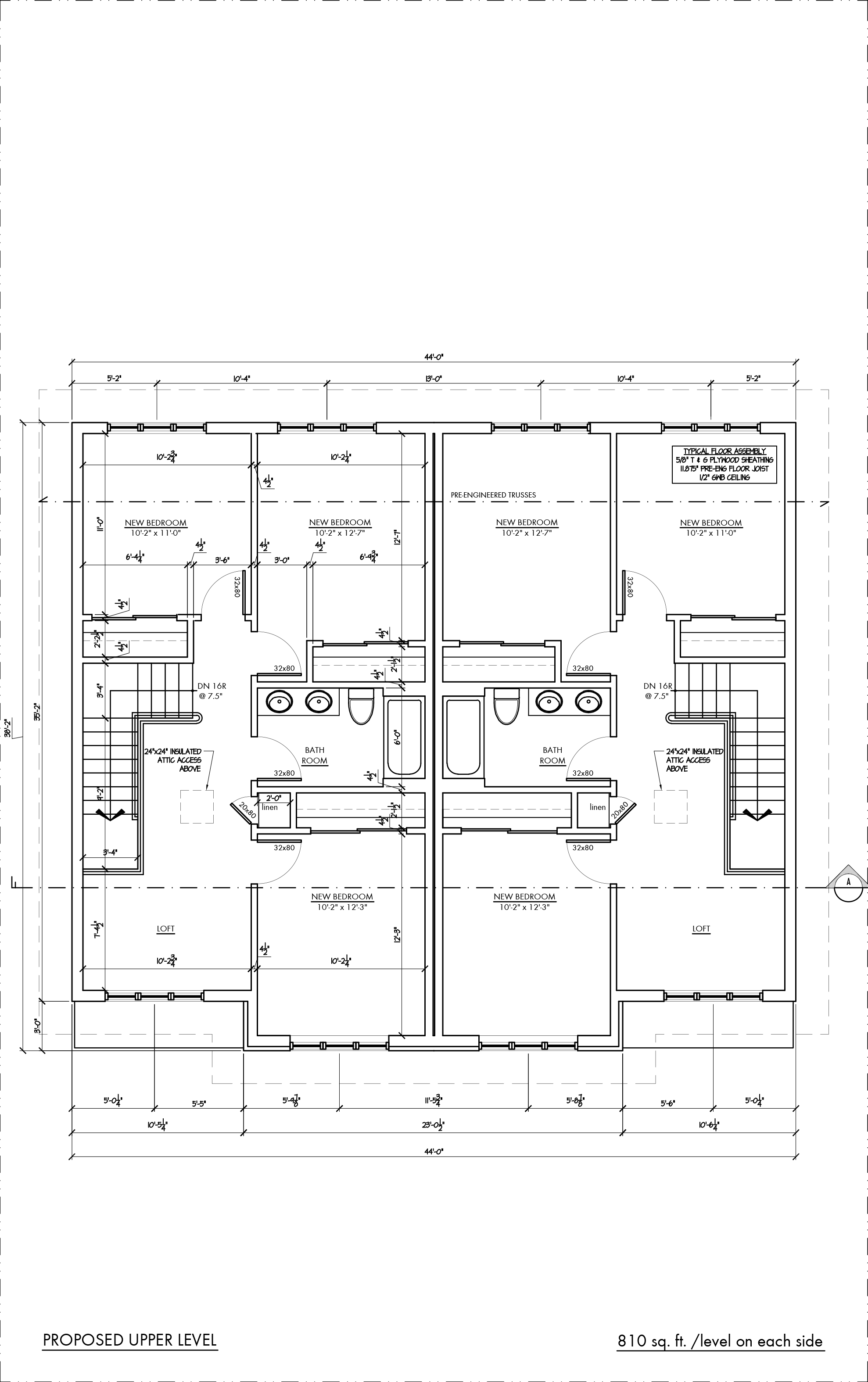
The Chestnut infill project adds modern density and thoughtful design to a mature St. Catharines neighbourhood. Each side of this contemporary duplex offers over 2,400 square feet across three levels, featuring six bedrooms and two and a half bathrooms. Open-concept main floors, large windows, and efficient layouts create bright, livable spaces ideal for today’s lifestyle. Blending brick, stone, and modern siding, the design enhances the existing streetscape while demonstrating the value of high-quality infill development.